Entdecken Sie unseren erstklassigen Zeichenservice CADtelier
Bei ISOCOM GmbH haben wir es uns zur Aufgabe gemacht, Architekten und Planungsbüros den besten CAD-Zeichenservice anzubieten.
Ihr Büro ist ausgelastet? Unser CAD-Team unterstützt Sie zuverlässig mit modernster CAD/BIM-Software.
Egal ob Wohngebäude, Gewerbe- oder Industriebauten, Verwaltungsgebäude, öffentliche Bauten oder sonstige Vorhaben – wir setzen Ihre Ideen und Anfragen präzise um.
Mit Archicad als unserer Hauptsoftware garantieren wir, dass jede Zeichnung höchsten Standards entspricht.
Unsere Leistungen
Wir arbeiten mit Archicad - 3D-Modellierung gemäß BIM-Richtlinien von Beginn an

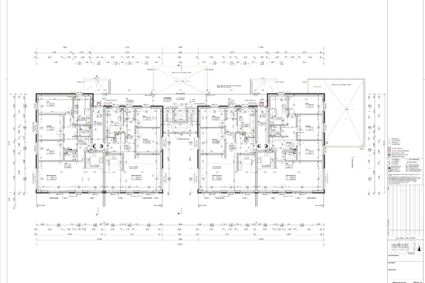
Digitalisierung
Sind Sie auf der Suche nach digitalen Plänen? Wir digitalisieren Ihr Gebäude aus Bestandsplänen, Skizzen, Altdaten, Fotos und/oder Aufmaß.

Entwurf
Wir setzen Ihren Entwurf in ein überzeugendes 3D-Modell um, mit dem Sie Ihren Bauherrn begeistern.

Genehmigung
Aus Ihrem Entwurf erstellen wir die Genehmigungspläne mit Grundrissen, Schnitten, Ansichten, Lageplan, Entwässerung, Außenanlagen sowie Berechnungen der Wohn- und Nutzfläche und des Brutto-Raum-Inhalts (BRI).

Ausführung
Aus den Genehmigungsplänen entwickeln wir die Ausführungsplanung. Dabei integrieren wir die Vorgaben aus Statik, Haustechnik und Energienachweis. Kritische Punkte werden in enger Abstimmung mit Ihnen detailliert erläutert und umgesetzt.

Flucht-/ Rettungspläne
In öffentlichen und gewerblichen Gebäuden sind Flucht- und Rettungspläne notwendig. Wir erstellen sie nach DIN ISO 23601 auf Basis eines Brandschutzgutachtens.
Vorteile
- Entlastung bei Personalengpässen oder Auftragsspitzen
- Hochwertige, termingerechte Ergebnisse zu bestem Preis-Leistungsverhältnis
- Flexible Kapazitäten und schnelle Reaktionszeiten
Kontakt
Gern erstellen wir Ihnen ein individuelles Angebot.
Senden Sie Ihre Anforderungen einfach per E-Mail an cadtelier@isocom-gmbh.de.
